

把一套房改成三套房,这样的神操作你见过吗?
室内胡同、图书馆、天台阁楼应有尽有,甚至还有广场和戏台。
说它是微缩版“老北京胡同”一点都不为过,妥妥的“一套更比三套强”!
房屋面积:200㎡
户型:顶跃复式
装修花费:230W
房屋坐标:北京 西城区
认识TA

设计师 刘阳
戏构建筑设计工作室 创始人/主持设计师
毕业于中央美术学院,从业经验8年+;2018年曾在建筑营设计事务所工作实践;曾参与设计北京什刹海地区胡同更新建筑改造项目,并参展北京国际设计周。2019年创立戏构建筑设计工作室,专注于人居类建筑与空间改造设计实践,其作品更加强调空间的形式逻辑与概念创新,执业期间荣获国内外多项设计奖项。
这是一套位于北京灵境胡同附近的顶跃住宅,屋主是一对年轻夫妻,和父母同住。
在北京的老街区里,200㎡的斜坡屋顶住宅是非常少见的,像这样的毛坯房就更加凤毛麟角,最高4.3米的层高为户型的重塑带来了广阔的施展空间。

户型剖面图
屋主夫妻希望改造后的新家,房间尽量多,需要两个儿童房和保姆居住的空间。身为教育工作者的他们,希望新家有趣味性也要有设计感,家里大量的书籍也需要集中收纳与展示。

相比此类户型常见的做平处理,设计师用“房中建房”的方式,充分利用屋顶空间,用三组错落有致的建筑群,为屋主一家量身定制了一处难以复刻的“房舍巷子”。


一条“胡同”
连结过去和将来
那些曾经源于生活、源于电影、源于内心的胡同场景,设计师找到传统原型再通过现代手法做了形式上的“转译”。

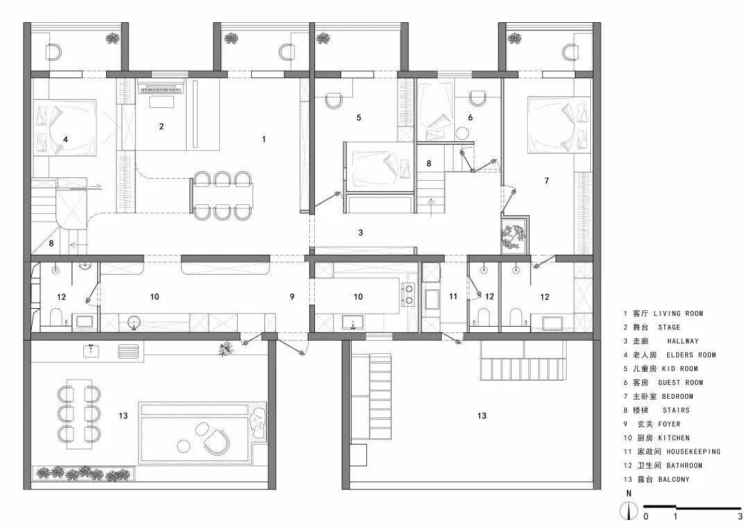
平面布置图(一层)
经过玄关走廊,就来到了这个贯穿全屋的微缩版胡同。过去在胡同里穿梭、在大树下乘凉、在长椅上看书,甚至是登上屋顶、眺望远方的场景,都可以在这条新的“胡同”里实现。

在化繁为简、去伪存真的过程中,将胡同生活化、室内化、现代化甚至极简化,是属于这里的设计语言。

因为这样一条胡同,每个空间有了一种新型的互动关系,孩子们在其中穿梭嬉戏、尽情探索,带来了源源不断的成长乐趣。

屋檐下读书、树下纳凉等生活场景,被巧妙地移植到了这里。

墙上纵向的格栅造型贯穿其中,在层高有限的地方延展视觉上的高度。

这条崭新的现代胡同,承载着屋主夫妻过往的城市印象,并匹配当下的生活方式,将来也会成为孩子们的独家记忆。

广场戏台
整条街巷的核心区域
这条“街巷”的核心区域,莫过于客厅与阁楼组成的广场戏台。中国传统巷弄里戏台、广场、厅堂、露台的空间形式,被完美复刻到他们的新家。

设计师说,这种舞台感构成了整栋房子的精神核心。在看与被看,演者与听者之间,一家人得以更紧密地联系在一起。

钢琴和壁炉,是戏台的核心C位,在客厅、阁楼的不同位置,都可以享受到高品质的环绕立体声享受。


这个围绕着舞台构建的空间,客厅、餐厅、书墙沿着阳台光源依次展开,深色的砂岩瓷砖赋予了这里自然的质感,在潜移默化之中暗示着空间转换。

3.4米宽,最高处达到4米的书架墙,为家中注入了浓厚的“知识分子风”气息。为了尽量避免结构上的风险,屋主咨询了清华、北大等多方专业人士,确保通顶书架的可行性。

可移动的“有轨梯子”方便拿取每一层的书籍

阁楼和天台
重拾“上房揭瓦”的乐趣
胡同尽头的楼梯,是进入顶层阁楼的必经之路。往日里上房揭瓦、坐在屋顶发呆的快乐,这里全都有。


楼梯木地板用的是稀缺且昂贵的瓦城料,从观感和触感上都相当出色。柚木饰面的包裹从楼梯延伸到屋顶,围合成一个安全感十足的小木屋。

曲线优美的玻璃护栏,光线和视线畅通无阻。射灯和条形灯带的搭配,勾勒出温馨浪漫的氛围。

富有童趣的圆洞气泡窗,是小木屋与外界的沟通方式。

透过阁楼视角,广场戏台、客厅、书架墙尽收眼底,家的形态以另一种方式映入眼帘。


登上另一侧楼梯,就来到了另一个屋顶天台。

柚木饰面完全包裹,连接两组建筑屋之间的游戏网,满足孩子好动的天性。双层绳网确保使用的安全。

绳网下面的空间,在来客人时可以做到临时封闭,作为客房使用。

阁楼和天台的设计,一下就激活了以前大概率被浪费的屋顶空间,如今更像一个多功能房,在这里读书、发呆、玩耍、聊天,填满一家人的闲暇时光。

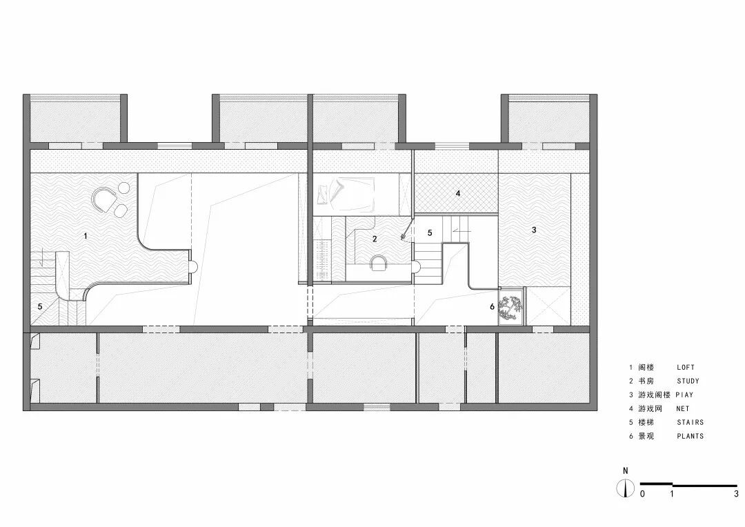
平面布置图(二层)

私密空间
每个人都各得其所
位于全屋中间位置的第二处“房舍”,将来用作儿童房使用,分为上下两个房间。
设计师利用房间的高差,实现了叠拼的结构效果。两个房间有各自独立的通道,上半部空间需经过半段楼梯,从隐形门进入。

房间的一侧是书桌、衣柜,另一侧只需登上两步台阶,就能到达床铺。


圆洞气泡窗再次出现在这里,为房间引入光线的同时增添趣味。

下半部分同样是独立的儿童卧室,床铺和上层实现了上下铺的关系。在柚木床板的包裹下,形成舒适的睡眠区。

主卧套房和父母房间,分别位于“街巷”的两端,确保居住的私密性。走进造型简约的卧室空间,可以让内心快速平静,从身体和心灵上进入自己的舒适区。

主卧

父母卧室

极简厨卫
平整过渡井井有条
玄关的两边,分别是西厨区和中厨区,嵌入式的厨电和极简的柜体,让这里时刻都能保持干净整洁的状态。


设计师在三组建筑屋附近分别设置一个卫生间,多口之家的如厕问题就这样被轻松化解。每个淋浴区的下水系统都经过精心设计,干湿区域之间过渡平整,方便老人和孩子的使用。


中部增加的家政区,承担了衣物洗烘、清洁工具存放的问题,确保了日常生活的井井有条。

这个向内生长的现代化房舍巷子,既有老胡同的底层逻辑,又结合了当下的生活方式和家庭实际需求,把居住幸福感这件事上升到了新的高度。
看到这,你羡慕了没?还有哪些好奇和疑问,欢迎留言区积极讨论~
美港通证券提示:文章来自网络,不代表本站观点。